Family 3
Beeindruckende Linienführung - außergewöhnliche Ideen für modernes Wohnen!
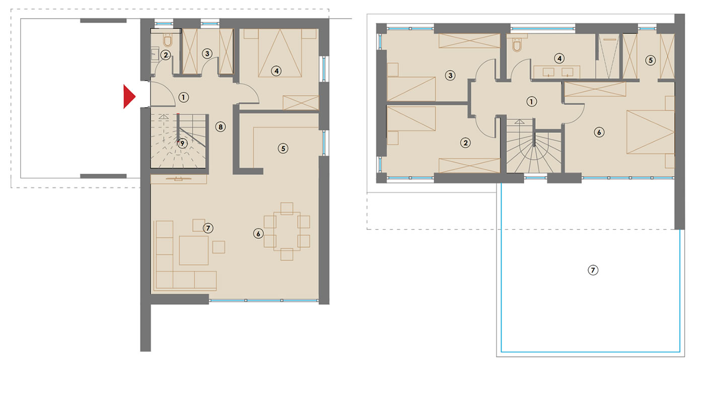
Bereits wenn Sie das Family 3 betreten, erwartet Sie ein modernes Wohnambiente. Die großzügige Diele erscheint durch Glaselemente an der Haustür hell und freundlich. Von der Diele aus erreichen Sie den Hauswirtschaftsraum sowie das praktische Duschbad. Zudem ermöglicht die Diele den Zugang zum 30 Quadratmeter großen Wohn- und Essbereich. Die bodentiefen Fenster erfüllen den Raum mit natürlichem Tageslicht. Die Küche bietet ausreichend Platz für die Zubereitung von leckeren Speisen für die ganze Familie.
Die u-förmige Treppe führt ins Obergeschoss und mündet in einen kleinen Flur, von dem alle Räume in der oberen Etage erreicht werden können.
Luxus pur für die Hausherren: Das große Schlafzimmer bietet Zugang zum Balkon und einen tollen Blick in den Garten. In diesem Stadthaus bleiben keine Wünsche mehr offen.
Family
Haustyp
139.2 m2
Wohnfläche
Flachdach
Dachform
2
Geschosse
HAUSDETAILS
Wohnfläche Erdgeschoss
1_Eingangsbereich
2_Badezimmer
3_Speisekammer
4_Schlafzimmer
5_Küche
6_Esszimmer
7_Wohnzimmer
8_Treppe
Obergeschoss
1_Flur
2_Schlafzimmer 1
3_Schlafzimmer 2
4_Badezimmer
5_
6_Schlafzimmer 3
7_Terrasse
